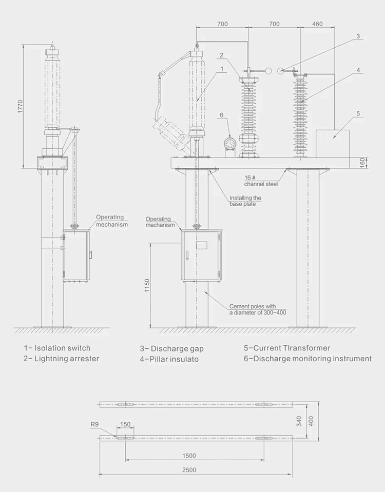
GW13 Disconnector Switch ອຸປະກອນປ້ອງກັນພື້ນດິນທີ່ເປັນກາງທີ່ຜະລິດໂດຍ Lugao ຖືກອອກແບບມາເພື່ອປົກປ້ອງການສນວນຂອງຈຸດທີ່ເປັນກາງຂອງຫມໍ້ແປງໄຟຈາກ overvoltage ຟ້າຜ່າ, ສະຫຼັບ overvoltage ແລະຄວາມຖີ່ຂອງພະລັງງານ overvoltage (ຊົ່ວຄາວ). Lugao ມີອຸປະກອນການຜະລິດແບບມືອາຊີບແລະປະສົບການການສົ່ງອອກທີ່ອຸດົມສົມບູນ, ແລະສິນຄ້າຄົງຄັງທີ່ຖືໄວ້ສາມາດຖືກຈັດສົ່ງຢ່າງໄວວາ.
ການປ່ຽນສາຍເຊື່ອມຕໍ່ຂອງ Lugao's GW13 Neutral Point Grounding Protection Devices are mainly used in the neutral point circuits of 110kV and 220kV power transformers. ພວກເຂົາເຈົ້າປົກປ້ອງ insulation ຈຸດທີ່ເປັນກາງຂອງ transformer ຈາກຄວາມເສຍຫາຍ overvoltage ແລະເຮັດໃຫ້ການຫັນປ່ຽນລະຫວ່າງ grounded ແລະ ungrounded ຮູບແບບການດໍາເນີນງານຈຸດກາງ. ໃນເວລາທີ່ການປ້ອງກັນພ້ອມໆກັນກັບຟ້າຜ່າ, ຄວາມຖີ່ຂອງພະລັງງານ, ແລະການສະຫຼັບ overvoltages ແມ່ນຈໍາເປັນ, ຊ່ອງຫວ່າງແລະຕົວຈັບສາມາດເຊື່ອມຕໍ່ໃນຂະຫນານສໍາລັບການປ້ອງກັນ. GW13 series neutral point overvoltage protector ແມ່ນຊຸດທີ່ສົມບູນທີ່ປະສົມປະສານຕົວຕັດຕໍ່, ຕົວຈັບ zinc oxide, ຊ່ອງຫວ່າງການໄຫຼ, ແລະຫມໍ້ແປງປະຈຸບັນ. ມັນມີຄວາມສາມາດຄວາມຮ້ອນສູງແລະການປົກປ້ອງທີ່ດີເລີດ, ການຕັ້ງຄ່າທີ່ຍືດຫຍຸ່ນ, ແລະຄວາມສະດວກໃນການນໍາໃຊ້. ການອອກແບບຊ່ອງຫວ່າງທີ່ບໍລິສຸດຫຼືການປະສົມປະສານຂອງ disconnector ແລະຊ່ອງຫວ່າງ discharge ສາມາດເລືອກເພື່ອຕອບສະຫນອງຄວາມຕ້ອງການຂອງຜູ້ໃຊ້.
ອຸປະກອນປ້ອງກັນ GW13 ຂໍ້ມູນສະເພາະດ້ານເຕັກນິກ
| ລໍາ |
ໜ່ວຍ |
ການໂຕ້ຖຽງ |
||
| ຮູບແບບຜະລິດຕະພັນ |
|
Lugao-GW13-110 |
Lugao-GW13-220 |
|
| ແຮງດັນທີ່ຈັດອັນດັບ |
KV |
110 | 220 | |
| Transformer neutral ທົນແຮງດັນ |
ຟ້າຜ່າເຕັມແລະຕັດທົນທານຕໍ່ແຮງດັນ (ສູງສຸດ) |
KV |
250 | 400 |
| ຄວາມຖີ່ພະລັງງານ 1 ນາທີ (ຄ່າປະສິດທິພາບ) |
KV |
95 | 200 | |
| ສະຫຼັບການໂດດດ່ຽວເປັນກາງ |
ອັນດັບປັດຈຸບັນ |
A | 630 | 630 |
| ກົນໄກການດໍາເນີນງານ |
|
CS14G (ຄູ່ມື) ຫຼື CJ2 (ໄຟຟ້າ) |
||
| ຕົວຈັບ zinc oxide |
ລະດັບແຮງດັນ (RMS) |
KV |
72 | 144 |
| ແຮງດັນເຮັດວຽກຢ່າງຕໍ່ເນື່ອງ |
KV |
58 | 116 | |
| ແຮງດັນອ້າງອີງ Dc 1mA |
KV |
103 | 205 | |
| ແຮງດັນທີ່ເຫຼືອຂອງກະແສໄຟຟ້າແຮງດັນຟ້າຜ່າ |
KV |
186 | 320 | |
| ຊ່ອງຫວ່າງ |
ໄລຍະຫ່າງ electrode ຊ່ອງຫວ່າງ |
ມມ | 90-150 | 220-320 |
| ຊ່ວງຄວາມຖີ່ແຮງດັນກະແສໄຟຟ້າ |
KV |
50-83 | 100-166 | |
| ແຮງດັນກະແສໄຟຟ້າ 1.2/50us |
KV |
120-190 | 250-320 | |
| ຫມໍ້ແປງປະຈຸບັນ |
ປະເພດ |
|
ຢາງ epoxy poured ປະເພດເສົາຄ້ໍາຢ່າງເຕັມສ່ວນ 10kv |
|
| ອັດຕາສ່ວນການປ່ຽນແປງ |
|
100/5,200/5,300/5.40015.50015.600/5 |
||
